

照明设计工作流程
1、概念设计
2、初步设计
3、扩初设计
4、招投标
5、施工图设计
6、监督施工
7、调光
8、施工验收
举例说明:
1、概念设计
现场调研和环境分析,视点-视线-对象分析,现场光环境数据采集,设计概念(设计的出发点)和表达,基本的照明方式表达,必要的定量分析。
融科,烟台迩海项目:设计的关键在于控制住表现的欲望,更内在更节制的呈现建筑本身,营造商业气氛和实现低能耗。

协信,上海虹桥协信中心项目:用“单一”的照明,借助复杂空间,呈现复杂结果。为验证概念的可行性,进行必要的照度-亮度分布模拟。

南京建邺区,双和办公区项目:用“不全”的照明,获得差异化的单体照明结果,营造丰富的街区印象的视觉感受。

2、初步设计
灯具布置,控制逻辑回路,初步的灯具安装详图,照度-亮度模拟,必要的实验,灯具选型(包括定制灯具设计要求)和造价估算。
融科,烟台迩海项目:初步设计

协信,上海虹桥协信中心项目:初步设计阶段的方案比较和实验

3、扩初设计
和建筑、室内、景观、电气等相关专业充分沟通,根据各专业反馈调整设计,确保照明设计从总体效果到细节处理的可实现。扩初设计的成果文件和初步设计相同,并构成招标文件的依据和核心内容。

4、招投标
协助业主确定招投标程序,评审技术标,进行必要的实验来验证灯具性能,选定合格产品。

融侨,福州江南水都项目:招标过程中的灯具实验

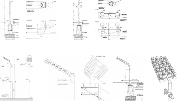
5、施工图设计
根据招投标结果,进行相应的设计调整、节点设计和协助厂家完成配件设计和定制灯具的设计。
融科,烟台迩海项目:灯杆、防眩光和调节配件设计

南京建邺区,双和办公区项目:灯杆设计

6、监督施工
掌握施工进度,及时核准灯具位置、安装方式和设计一致。协助解决现场问题。

7、调光
通常包括确定灯具投射方向、调节强度和色彩、调节投光轴向(比如扁光)、调节防眩光配件、场景设定等工作。调光对于照明效果的呈现至关重要。
融科,烟台迩海项目:设计师和施工师傅在窗台上调光(窗台很高,师傅和设计师都是吊上去的)

为了获得理想的调光结果,把埋地灯改装成投光灯后固定,再完成建筑面层。
8、施工验收
工程完成,请业主及相关各单位现场验收。必要时提交竣工报告,评估工程结果。
融科,烟台迩海项目:竣工照




南京建邺区,双和办公区项目:竣工照


一个项目贯穿了整个照明行业各个不同领域的角色和需求。我们作为照明设计师,只是其中一员,我们知道我们对整个行业的了解相当有限,观点难免片面和浅薄。希望大家都站在自己的立场上,把这个问题聊透。或者我们针对这个问题组织个会,甚至组织个组织。
【版权信息】本文为远瞻设计授权发布,作者:齐洪海,由照明微课堂编辑整理,转载请注明。
---------------------------------------------












